ホーム
会社案内
申請図サンプル
お問い合わせ
ホーム
会社案内
申請図サンプル
お問い合わせ
2025-08
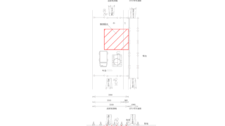
上水
袋井材料
袋井材料のサンプル図
2025.08.28
上水
申請図サンプル
袋井
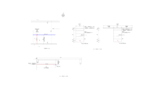
上水
静岡立面
静岡立面のサンプル図
2025.08.28
上水
申請図サンプル
静岡
上水
袋井規制
袋井規制のサンプル図
2025.08.28
上水
申請図サンプル
袋井
上水
御前崎立面
御前崎立面のサンプル図
2025.08.27
上水
御前崎
申請図サンプル
上水
静岡市平面
静岡市平面のサンプル図
2025.08.27
上水
申請図サンプル
静岡
上水
菊川立面
菊川立面のサンプル図
2025.08.27
上水
申請図サンプル
菊川
上水
御前崎占用
御前崎占用のサンプル図です。
2025.08.27
上水
御前崎
申請図サンプル
上水
菊川平面
菊川平面図のサンプルです。
2025.08.27
上水
申請図サンプル
菊川
上水
掛川規制
掛川規制図のサンプルです。
2025.08.26
上水
掛川
申請図サンプル
上水
掛川占用
掛川占用図面のサンプルです。
2025.08.26
上水
掛川
申請図サンプル
次のページ
1
2
次へ
ホーム
会社案内
申請図サンプル
お問い合わせ